Studio di Torino

Villa all'asta a Torino - zona Colle della Maddalena

Home > Ricerca > Dettaglio immobile
Rif: ID7162

TORINO

TORINO - zona Colle della Maddalena
Condividi Linkedin Whatsapp Stampa
Stampa

CONTATTACI SUBITO!
PER ESEGUIRE IN TOTALE SICUREZZA TUTTE LE PROCEDURE IN ASTA CI SERVONO ALMENO 40 GIORNI!
DESCRIZIONE IMMOBILE:
ZONA BORGO PO TORINO – STRADA DEL MAINERO 126
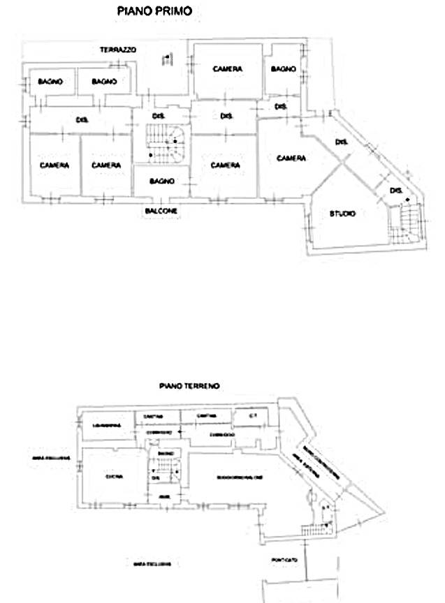
Immobile elevato a tre piani fuori terra. La villa è composta da:
- al piano terra: ingresso, disimpegno, cucina, soggiorno/salone, bagno, lavanderia, corridoio, due cantine, centrale termica e locale tecnico;
- al primo piano: sei disimpegni a formazione di un unico corridoio, cinque camere, studio, quattro bagni e terrazzo;
- al piano sottotetto: due ampi locali.
Valore di perizia circa 1.500.000 Eu. - Offerta minima 1.119.450 Eu. - Risparmio potenziale del 26%.
Le foto allegate sono a scopo puramente illustrativo e potrebbero non essere esaustive. Foto e dati tecnici, relativi la pubblicazione d'asta ufficiale, sono consultabili presso il nostro studio e saranno trasmessi in fase di consulenza gratuita.
Per maggiori info sull'annuncio contatta lo Studio Aste Immobiliari.
Se desideri massimizzare il risparmio partecipando alle aste immobiliari in completa autonomia… Ti supportiamo con il pacchetto formativo per le ASTE FAI DA TE!
Se invece preferisci delegare, potrai avere a tua disposizione PROFESSIONISTI DEL SETTORE ASTE, profondamente esperti, competenti e preparati, che svolgeranno al posto tuo tutte le articolate e complesse procedure di ricerca, predisposizione e battitura aste.
PROFESSIONISTI A VOSTRA DISPOSIZIONE!
La consulenza dello Studio Aste Immobiliari® è completamente gratuita e senza alcun impegno!
VI SEGUIAMO A 360° - assistenza mutuo fino al 100% – presentazione aste in linea con le vostre esigenze – informativa preliminare completa per ogni asta di vostro interesse – accompagnamento alla visita immobile – consulenza tecnica – assistenza legale e notarile – check list e studi di fattibilità – analisi giuridiche – analisi tecniche perizie, ordinanze e avvisi di vendita – accertamenti catastali – interfaccio con amministratori e con enti territoriali di riferimento – stesura domanda di partecipazione – deposito offerta – assistenza in asta – analisi completa dei costi – compilazione modelli F24 delle tasse – ricerche catastali e ipotecarie – disbrigo pratiche burocratiche – assistenza decreto di trasferimento – assistenza saldo prezzo – assistenza all'eventuale sgombero – assistenza consegna immobile – ristrutturazione a prezzi agevolati – accordi stragiudiziali – saldi e stralci.
LA NOSTRA SQUADRA:
-Consulente tecnico dedicato
-Personale di back office dedicato
-Mediatore creditizio
-Geometra
-Architetti
-Ingegnere
-Avvocati
-Notaio
-Commercialista
Potrete inoltre usufruire di speciali convenzioni con istituti di credito, assicurazioni, imprese edili per eventuali ristrutturazioni e agenzie per la vendita nel mercato libero.

Consistenze

Descrizione Superficie Sup. comm.
Principali
Immobile - piano terra 471 Mq 471 Mqc
Totale 471 Mqc

Video


Richiedi maggiori informazioni

Autorizzazione al trattamento dei dati personali+
Dichiaro di aver letto l'informativa sulla privacy ed accetto le condizioni d'utilizzo del servizio.
Riempi il campo con il codice riportato nell'immagine*
Codice Captcha

Annunci simili

ID7061
Vendita

Appartamento a Torino

All'asta a Torino zona Crocetta
CONTATTACI SUBITO! PER ESEGUIRE IN TOTALE SICUREZZA TUTTE LE PROCEDURE IN ASTA CI SERVONO ALMENO 40 GIORNI! DESCRIZIONE IMMOBILE: A TORINO (TO), VIA MASSENA N.103 Nel quartiere CROCETTA, appartamento di ampie dimensioni della superficie commerciale di mq. 417,40 disposto principalmente su due Continua
417 Mq 45 € 562.500

Chiamaci Contattaci