Studio di Torino

Appartamento all'asta a Moncalieri Torino - zona Mercato - Santa Maria

Home > Ricerca > Dettaglio immobile
Rif: ID7143

MONCALIERI

TORINO - zona Mercato - Santa Maria
Condividi Linkedin Whatsapp Stampa
Stampa

CONTATTACI SUBITO!
PER ESEGUIRE IN TOTALE SICUREZZA TUTTE LE PROCEDURE IN ASTA CI SERVONO ALMENO 40 GIORNI!
DESCRIZIONE IMMOBILE:
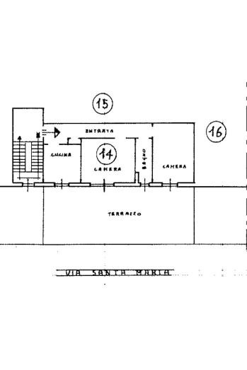
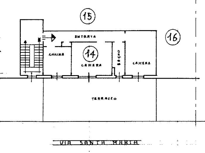
MONCALIERI (TO) – VIA SANTA MARIA 29
Immobile posto al piano primo (secondo fuori terra). L'alloggio è composto da: ingresso, soggiorno con angolo cottura, due camere, bagno e terrazzo. Al piano interrato cantina di pertinenza.
Valore di perizia circa 95.000 Eu. - Offerta minima 60.000 Eu. - Risparmio potenziale del 37%.
Le foto allegate sono a scopo puramente illustrativo e potrebbero non essere esaustive. Foto e dati tecnici, relativi la pubblicazione d'asta ufficiale, sono consultabili presso il nostro studio e saranno trasmessi in fase di consulenza gratuita.
Per maggiori info sull'annuncio contatta lo Studio Aste Immobiliari.
Se desideri massimizzare il risparmio partecipando alle aste immobiliari in completa autonomia… Ti supportiamo con il pacchetto formativo per le ASTE FAI DA TE!
Se invece preferisci delegare, potrai avere a tua disposizione PROFESSIONISTI DEL SETTORE ASTE, profondamente esperti, competenti e preparati, che svolgeranno al posto tuo tutte le articolate e complesse procedure di ricerca, predisposizione e battitura aste.
PROFESSIONISTI A VOSTRA DISPOSIZIONE!
La consulenza dello Studio Aste Immobiliari® è completamente gratuita e senza alcun impegno!
VI SEGUIAMO A 360° - assistenza mutuo fino al 100% – presentazione aste in linea con le vostre esigenze – informativa preliminare completa per ogni asta di vostro interesse – accompagnamento alla visita immobile – consulenza tecnica – assistenza legale e notarile – check list e studi di fattibilità – analisi giuridiche – analisi tecniche perizie, ordinanze e avvisi di vendita – accertamenti catastali – interfaccio con amministratori e con enti territoriali di riferimento – stesura domanda di partecipazione – deposito offerta – assistenza in asta – analisi completa dei costi – compilazione modelli F24 delle tasse – ricerche catastali e ipotecarie – disbrigo pratiche burocratiche – assistenza decreto di trasferimento – assistenza saldo prezzo – assistenza all'eventuale sgombero – assistenza consegna immobile – ristrutturazione a prezzi agevolati – accordi stragiudiziali – saldi e stralci.
LA NOSTRA SQUADRA:
-Consulente tecnico dedicato
-Personale di back office dedicato
-Mediatore creditizio
-Geometra
-Architetti
-Ingegnere
-Avvocati
-Notaio
-Commercialista
Potrete inoltre usufruire di speciali convenzioni con istituti di credito, assicurazioni, imprese edili per eventuali ristrutturazioni e agenzie per la vendita nel mercato libero.

Consistenze

Descrizione Superficie Sup. comm.
Principali
Immobile - 1° piano 70 Mq 70 Mqc
Totale 70 Mqc

Video


Richiedi maggiori informazioni

Autorizzazione al trattamento dei dati personali+
Dichiaro di aver letto l'informativa sulla privacy ed accetto le condizioni d'utilizzo del servizio.
Riempi il campo con il codice riportato nell'immagine*
Codice Captcha

Annunci simili

ID7036
Vendita

Appartamento a Moncalieri

All'asta a Moncalieri zona San Pietro
CONTATTACI SUBITO! PER ESEGUIRE IN TOTALE SICUREZZA TUTTE LE PROCEDURE IN ASTA CI SERVONO ALMENO 40 GIORNI! DESCRIZIONE IMMOBILE: MONCALIERI (TO) – VIA CARLO COLLODI 12 Immobile posto al piano terzo (quarto fuori terra). Il lotto è composto da: cucina, disimpegno, due camere, bagno, ripostiglio e Continua
80 Mq 12 € 63.000

Chiamaci Contattaci