Studio di Torino

Appartamento all'asta a Ceriale Savona

Home > Ricerca > Dettaglio immobile
Rif: ID7075

CERIALE

SAVONA
Condividi Linkedin Whatsapp Stampa
Stampa

CONTATTACI SUBITO!
PER ESEGUIRE IN TOTALE SICUREZZA TUTTE LE PROCEDURE IN ASTA CI SERVONO ALMENO 40 GIORNI!
DESCRIZIONE IMMOBILE:
CERIALE (SV) – VIA SAN BERNARDO 12
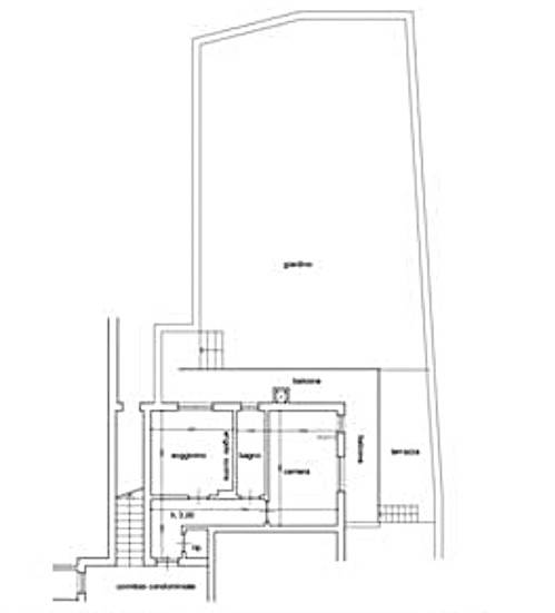
Immobile posto al piano terreno (primo fuori terra). L'alloggio è composto da: ingresso/corridoio disimpegno, soggiorno con angolo cottura, camera, ripostiglio, bagno, balcone e giardino. Al piano terreno cantina di pertinenza.
Valore di perizia circa 156.000 Eu. - Offerta minima 114.946 Eu. - Risparmio potenziale del 27%.
Le foto allegate sono a scopo puramente illustrativo e potrebbero non essere esaustive. Foto e dati tecnici, relativi la pubblicazione d'asta ufficiale, sono consultabili presso il nostro studio e saranno trasmessi in fase di consulenza gratuita.
Per maggiori info sull'annuncio contatta lo Studio Aste Immobiliari.
Se desideri massimizzare il risparmio partecipando alle aste immobiliari in completa autonomia… Ti supportiamo con il pacchetto formativo per le ASTE FAI DA TE!
Se invece preferisci delegare, potrai avere a tua disposizione PROFESSIONISTI DEL SETTORE ASTE, profondamente esperti, competenti e preparati, che svolgeranno al posto tuo tutte le articolate e complesse procedure di ricerca, predisposizione e battitura aste.
PROFESSIONISTI A VOSTRA DISPOSIZIONE!
La consulenza dello Studio Aste Immobiliari® è completamente gratuita e senza alcun impegno!
VI SEGUIAMO A 360° - assistenza mutuo fino al 100% – presentazione aste in linea con le vostre esigenze – informativa preliminare completa per ogni asta di vostro interesse – accompagnamento alla visita immobile – consulenza tecnica – assistenza legale e notarile – check list e studi di fattibilità – analisi giuridiche – analisi tecniche perizie, ordinanze e avvisi di vendita – accertamenti catastali – interfaccio con amministratori e con enti territoriali di riferimento – stesura domanda di partecipazione – deposito offerta – assistenza in asta – analisi completa dei costi – compilazione modelli F24 delle tasse – ricerche catastali e ipotecarie – disbrigo pratiche burocratiche – assistenza decreto di trasferimento – assistenza saldo prezzo – assistenza all'eventuale sgombero – assistenza consegna immobile – ristrutturazione a prezzi agevolati – accordi stragiudiziali – saldi e stralci.
LA NOSTRA SQUADRA:
-Consulente tecnico dedicato
-Personale di back office dedicato
-Mediatore creditizio
-Geometra
-Architetti
-Ingegnere
-Avvocati
-Notaio
-Commercialista
Potrete inoltre usufruire di speciali convenzioni con istituti di credito, assicurazioni, imprese edili per eventuali ristrutturazioni e agenzie per la vendita nel mercato libero.

Consistenze

Descrizione Superficie Sup. comm.
Principali
Immobile - piano terra 62 Mq 62 Mqc
Totale 62 Mqc

Video


Richiedi maggiori informazioni

Autorizzazione al trattamento dei dati personali+
Dichiaro di aver letto l'informativa sulla privacy ed accetto le condizioni d'utilizzo del servizio.
Riempi il campo con il codice riportato nell'immagine*
Codice Captcha

Annunci simili

ID6960
Vendita

Appartamento a Ceriale

All'asta a Ceriale
CONTATTACI SUBITO! PER ESEGUIRE IN TOTALE SICUREZZA TUTTE LE PROCEDURE IN ASTA CI SERVONO ALMENO 40 GIORNI! DESCRIZIONE IMMOBILE: CERIALE (SV) – VIA MAGNONE 77/8 Immobile posto al piano secondo (terzo fuori terra). L'alloggio è composto da: corridoio, soggiorno, cucinino, camera, bagno e balcone. Continua
58 Mq 11 € 69.179

Chiamaci Contattaci